Oficina con licencia para cambio de uso a vivienda sin obra ejecutada en su totalidad
Estamos en un momento del mercado inmobiliario donde abundan anuncios del tipo ?¡¡¡Oportunidad!!!! bajo para transformar en una vivienda a tu gusto". Los interesados llamamos y es cuando se nos informa que debemos hacer todo el trámite administrativo, con la consiguiente incertidumbre que conlleva el saber si el cambio de uso será viable o no. Lo que comercializamos nosotros solo tiene en común con la situación anterior que registralmente hoy nuestro inmueble es una oficina, si bien en todo lo demás nos distinguimos:
- Lo que ofrecemos no es un bajo, es un primer piso de 85 metros
- Una parte muy importante de la reforma ya está realizada
- La licencia de obra para el cambio de uso a vivienda está aprobada y vigente.
- La licencia se aprobó de acuerdo con el Plan Xeral actual.
- El coste inicial del arquitecto ya está pagado
- La licencia está pagada.
- Los cálculos de la obra ya están realizados
Es decir, te ofrecemos una operación más segura y atractiva que la mayoría de las oficinas en venta.
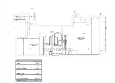
El proyecto presenta un gran espacio con una habitación y vestidor el cual es lo suficientemente amplio como para ser una segunda habitación si la necesitas.
El resto del espacio se distribuye en un baño, un aseo, cuarto de lavadora y un gran espacio ocupado por el salón y la cocina abierta.
El edificio cuenta con gas natural y en el importe de la comunidad está incluido el agua y la calefacción. Eso se traduce en que tus gastos fijos los tendrás controlados todos los meses.
El piso está orientado hacia el cruce formado por las calles Gerona, Alfonso X o Sabio y Otero Pedrayo. Ubicado entre Gran Vía y Plaza Independencia, al lado del colegio de las Jesuitinas, con todos los servicios a mano y bien conectado con transporte urbano a cualquier punto de la ciudad.
Llámanos para visitarlo y despeja todas las dudas que te puedan surgir.
Comunidad: calefacción, agua caliente....
Características
- ReferenciaP004185
- Año de reforma2025
- Antigüedad56 años
- Tipo de pisoPiso
- Cert. EnergéticaEn Trámite
- Superficie80 m2
- Habitaciones2
- Baños2
- Calefacción
- Tipo calefacciónGas Colectivo
- Ascensor
- Garaje incluido
- Trastero
- Tipo sueloTarima
- Tipo persianaPVC
- OrientaciónFrente Norte
- Luminoso
- Exterior
- Admite mascotas
- Comunidad120.00 €
- Doble cristal
- Videoportero
- Acepta estudiantes
Calificación Energética
Es un sitio ideal para mí
